لماذا تحتاج إلى أن تأخذ في الاعتبار حجم طاولة المطبخ في الداخل
طاولة للمناشير الدائرية بأيديهم. الرسومات والصور والنصائح.
المنشار الدائري يستخدم لنشارة الخشب.

استخدام المنشار اليدوي ليس مريحًا دائمًا ، يتيح لك استخدام الطاولة جعل العملية أكثر سلاسة ودقة
تحتوي قاعدة القطع على طائرة تشبه القرص ، ومجهزة بحافة خارجية مع أسنان. هناك طرز ليس فقط من النوع اليدوي ، ولكن أيضًا مع إمكانية التثبيت على الطاولة.

من الصعب التعامل مع كميات كبيرة من الخشب باستخدام دائرية تقليدية لذلك من الأفضل وضعها على الطاولة
هناك عدة طرق للحصول على أحدث لسهولة التلاعب. يمكن بناء شفرات منشار الطاولة بشكل مستقل ، فقط بعد مخطط معين.

جهاز المناشير الدائرية
المحتوى
مزايا إنشاء يديك

يتكون الجدول مع الأخذ في الاعتبار حقيقة أن أداة اليد سيتم تثبيتها وثباتها على الطاولة ، وبالتالي تصبح معدات ثابتة
يتيح لك بناء العنصر بيديك جعل المنشار مناسبًا قدر الإمكان للظروف الفردية. لن تنشأ صعوبات في العملية إذا قمت بفحص المشكلة بعناية. يمكنك ضبط المنتج حسب الحجم المرغوب فيه ، وتوزيع كل شيء حتى يكون مناسبًا لك.

لجعل طاولة لمنشار دائري قادر تماما من كل سيد.
النموذج اليدوي سيكون فريدًا من نوعه ، مما يجعله فريدًا.

موقف سطح المكتب الصغيرة للتعميمات
نحدد التصميم والبناء

أبسط نسخة من الجدول الدائري هو بناء الخشب الرقائقي سميكة بما فيه الكفاية واللوحات.
يمكن أن تكون القاعدة مصنوعة من الخشب أو المعدن. بالنسبة لأجهزة الكمبيوتر المحمولة ، اختر الأشجار المورقة. ينبغي أن تجعل ثقب خاص للقرص. يجب أن تكون الميزة الرئيسية للجدول الذي تم إنشاؤه هي الراحة.

السرير من آلة دائرية
يجب أن تهتم باستقرارها. لا يُسمح بالتخفيف ، وإلا فسيؤثر سلبًا على الأمان. في أعلى الجدول يجب أن يكون سطح أملس. هذا سوف يقلل من احتمال الإصابة أثناء العمل.

طاولة المناشير الدائرية تتطلب وجود أدلة.
يمكن أن تستكمل البناء بسكين تجديف خاص. يمكن إزالته. إنه مزود بحماية خاصة للقرص تتيح لك التخلص من الطيران إلى نهايات العمل.

دائرية دليل الجدول النقل
يقوم البعض بإزالة غطاء المصنع وتغيير منصة المصنع إلى واحدة محلية الصنع. إذا كنت لن تنفذ عملية النشر بزاوية ، يمكنك إزالة الأجزاء التي تنظم ميل القرص.
رسومات

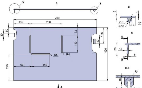
مخطط لتصنيع طاولة المناشير الدائرية
قبل بدء العمل ، يوصى باجتياز المرحلة التحضيرية. تأكد من عمل رسم. هذا سوف يسهل عملية إنشاء الهيكل. أولاً ، احسب حجم الجدول ، ثم انقل البيانات إلى الورقة. يجب أن يتطابق الثقب الذي يتم تصنيعه في المرفق مع حجم المنشار. كل هذا يتوقف على العلامة التجارية للمعدات. لأنك لا تستطيع عمل ثقب عالمي.يجب أن تكون القاعدة مستقرة وقادرة على تحمل الأحمال الميكانيكية.

رسم جدول ل DIY التعميم
لا يجوز إعادة توازن الهيكل في أحد الجانبين. يجب أن تناسب أبعاد سطح العمل تدفق النشر. وكشفت النسخة النهائية على أساس الرغبات الفردية. يعمل البعض بشكل مريح مع طاولة قابلة للطي أو عنصر ذي أبعاد صغيرة.

رسم آلة سطح المكتب العالمي
يجب أن تأخذ الرسومات في الاعتبار نقطة مهمة. إذا كانت الخطط عند العمل تترك أدوات أو مواد على الطاولة ، فيجب زيادة أبعاد سطح الطاولة إلى متر مربع في المنطقة. سيكون الحجم المناسب 120 × 120 سم ، ويجب أن يتم الرسم بعناية وببطء من أجل القيام بكل شيء بشكل صحيح.

تخطيط جدول الدائرة مع وصف مفصل
المواد المطلوبة

يمكن صنع طاولة محلية الصنع من الخشب
لمثل هذا الجدول يمكن استخدامها الخشب ، والخشب الرقائقي أو اللوح. مناسبة أيضا يمول و الحبيبي. البعض يفضل اختيار الصلب أو الألومنيوم.

الجدول الصلب لوحة دائرية
لا ينصح باستخدام البلاستيك ، فهو غير مناسب تمامًا لجدول لهذا الغرض. إذا تم اختيار الخشب ، ثم بعد اكتمال التجميع ، يجب أن يعامل المنتج بتركيبة مطهرة خاصة. سيوفر ذلك حماية موثوقة ضد الرطوبة ويساعد على تجنب التعفن.
لجعل الجدول المنشار نفسك تحتاج إلى إعداد المواد.
- المواد الخام المختارة للقاعدة. يجب أن يكون سمك 21 ملم.
- الأخشاب المطلوبة للإطار. لوح متفوق بطول 3 أمتار بأبعاد من 50 إلى 150 مم. مجموع الحاجة 5 قطع.
- المسامير المصنوعة من الخشب بأبعاد 10 سم ، على الأقل 12 قطعة.
- نجارة الغراء.
- مثبتات معدنية بحجم 4 قطع.
- زوايا معدنية. يكفي 10 جهاز كمبيوتر شخصى.
- الذاتي التنصت على مسامير.
يجب إعداد هذه العناصر مسبقًا ووضعها بالقرب من مكان العمل.
الأدوات المطلوبة
بالإضافة إلى المواد يجب أن تكون أدوات جاهزة.
من بينها:
- قلم رصاص وعلامة
- أدوات القياس ، بما في ذلك قياس العداد والشريط ؛
- جيجساوس.
- مطحنة يدوية
- آلة طحن
- ورق الصنفرة (يجب أن يكون حبة متوسطة أو دقيقة) ؛
- الطائرة والحفر.
- مفك البراغي.
تحتاج إلى إعداد كل شيء مقدمًا والاحتفاظ به في متناول اليد طوال العملية.
عملية التصنيع: تعليمات خطوة بخطوة

بمناسبة مكان تعلق المنشار بالجدول

بمناسبة وتثبيت المصلبات

سطح عمل للمنشار الدائري في شكله النهائي
لجعل منشأة الجودة ، تحتاج إلى اتباع بعض النصائح. تتكون العملية من عدة خطوات مقدمة في الجدول.
| خطوات | وصف |
| 1 | يجب تقليم شريط من جميع الجوانب مع المسوي. بعد ذلك سوف يصور مستقبل الطاولة. في كل جانب من جوانب سطح الطاولة ، تحتاج إلى حفر عدة فتحات بحجم 5 مم. بالإضافة إلى ذلك ، يتم إجراء تمريرة واحدة لأرجل المنتج. |
| 2 | في القيصر توجد عدة ثقوب من نفس القطر. في الساقين أداء واحد المار. القطر لا يزال هو نفسه ، 5 مم. |
| 3 | المضي قدما لتثبيت المسامير في الطاولة. قبل ذلك ، كانت مغطاة بالغراء الخشب. يتم وضع الساقين و tsargs على القمة. في وجود المشابك مع العلاقات ، يجب تأمين المنتج مع مساعدتهم. عندما يجف الغراء تمامًا ، تحتاج إلى تثبيت الظهر والساقين باستخدام السحابات المعدنية الخاصة. بالإضافة إلى ذلك ، يجب عليك سحب مع مسامير. إضافة إلى بناء الموثوقية والمتانة ، يمكنك استخدام الزوايا. سوف تصبح عنصرا من عناصر التثبيت الإضافية ، وسوف تعطي استقرار المنتج. بالنسبة للجانب القصير ، قطعتان تكفيان ، والجانب الطويل 3. |
| 4 | تتضمن الخطوة التالية تأمين المنشار على المنتج من الداخل. هناك عدة طرق لإنجاز المهمة. لإصلاح مسامير مناسبة M4 أو قضبان مع مسامير. الحالة الأولى سريعة وموثوقة. الطريقة الثانية لا تنطوي على ثقوب إضافية ، مما يلغي الحاجة إلى الحفر.تحتاج إلى القيام في حالة سكر في الحانات ، التي يساوي عرضها أبعاد أرض المنشار. المقبل ، مسامير والقضبان على كلا الجانبين ربط المعدات والسطح المنضدي |
| 5 | بعد تثبيت المنشار ، ستحتاج إلى شريط أكبر. ذلك ، باستخدام مسامير التنصت على الذات ، إصلاح على أساس التصميم. يتم التثبيت على العلامات التي يتم وضعها عند وضع المنصة في الوضع المسطح. ستساعد هذه التلاعب ، عند إزالة المنشار ، على إرجاعها بسرعة دون البحث عن علامات. |
| 6 | يتم إنشاء قرص المنشار في مكان وضع. المنشار الأساسي للحصول على ثقب طولاني. ثم يحتاج المنتج إلى تحول |
| 7 | ثم البدء في صنع توقف مواز. ونشرت اثنين من شرائح من الخشب الرقائقي. يجب أن يتزامن طولها مع عرض الجدول. في المتوسط ، تبلغ هذه الأبعاد 10 سم ، ويجب تقريب الزوايا. |
| 8 | الشريط الناتج مصقول. يجب تثبيتها بزاوية مع براغي ذاتية التنصت. داخل يجب ربط زاوية من المعدن |
| 9 | إذا كنت بحاجة إلى إصلاح الدعم على القاعدة وسيتم استخدام الهيكل في كثير من الأحيان ، يجب إرفاق الدليل بحيث يكون عموديًا على القرص. نعلق الأسطوانة في الأسفل. هذا سيسمح له بالتحرك. |

ربط الساقين إلى الطاولة

تثبيت المنشار على الطاولة

تحديد زر البدء
التصميم مصنوع وجاهز للاستخدام. عند القيام بالمعالجات الموصوفة ، من المهم أن تتذكر مراعاة تدابير السلامة. مخاوف وأي تلاعب بمنشار دائري.
تحقق بانتظام من موقف الجدول وقوتها. يجب أن يكون التصميم مستقراً ، دون تخفيف.

مثال على طاولة عمل لمنشار دائري

خيار طاولة لمنشار دائري يدوي مع آلية الارتفاع
تأكد أولاً من تثبيت المنشار بأمان ، ثم قم بتشغيله. لا يمكنك الاستمرار في قطع المواد باليد. سيساعد ذلك في منع سقوط الخشب في الوجه عندما تبدأ العقدة في الارتداد. بالإضافة إلى ذلك ، يوصى باستخدام نظارات واقية خاصة عند العمل.

استخدام نظارات السلامة للسلامة.
هذه النصائح البسيطة ستساعد على تجنب الإصابة في مكان العمل.
فيديو: طاولة دائرية مصنوعة من مواد الخردة
لماذا تحتاج إلى أن تأخذ في الاعتبار حجم طاولة المطبخ في الداخل
المائدة المستديرة تفعل ذلك بنفسك
كيفية الغراء الحافة إلى الطاولة في المنزل.
كيفية بناء جدول تحويل نفسك؟
ما ينبغي أن يكون ارتفاع مكتب الكمبيوتر؟
نصنع محول الجدول بأيديكم






شكرا لهذه المادة مثيرة للاهتمام! لقد كنت مفيدًا جدًا في صنع طاولة دائرية خاصة بك!