كيفية سحب كرسي الكمبيوتر بأيديهم.
نظرة عامة على ملحقات السرير: الأنواع والمواد والوظائف
إكسسوارات الأثاث موجودة في كل منزل. أنه يحمل أرفف الكتب ، طاولة المطبخ والكتابة ، والعديد من الأثاث الأخرى. ولكن لا يعلم الكثير من الناس أن شراء تجهيزات منخفضة الجودة ، فإنك تخاطر بإنفاق المزيد من الأعصاب والوقت والمال لشراء تركيبات جديدة ، بدلاً من التفكير في جودة التجهيزات في مرحلة اختيار الأثاث في المستقبل. يجب إيلاء اهتمام خاص للملحقات للأسرة ، حيث أنها تحتوي على أكبر حمولة كل يوم.

إذا لزم الأمر ، يمكنك تقليل قوة الآلية ، وإزالة واحد أو أكثر من الينابيع.

يمكن ضبط ارتفاع السطح الداعم لشبكة الفرش أو التنجيد في 3 أوضاع لكل منهما 24 مم.

دعونا نطبق التصاميم الخشبية والمعدنية الأنبوبية. شكل مغلق: مع السطح المجلفن يمكن تطبيقها في الجبهة.
المحتوى
أنواع التجهيزات
في المجموع هناك أربعة أنواع رئيسية من إكسسوارات الأثاث.
- آليات الحركة. الأرجل والعجلات الأكثر شيوعًا - يمكن أن يكون هذا النوع من التركيبات ثابتة ومتحركة.
- آليات التركيب. يتم استخدامها لإصلاح وتوصيل الأجزاء مع بعضها البعض ، وتشمل هذه المكسرات ، البراغي ، الأظافر ، البراغي ، البراغي ، إلخ.
- آليات التحول. يستخدم لتغيير خصائص أداء الأثاث ، وكذلك يغير شكله أو حجمه.
- أنواع مختلفة من العناصر الزخرفية المستخدمة لتزيين الأثاث.

لارتفاع السرير الفردية.

هذا ينطبق على أي تصاميم للأسرة.

مصمم للاستخدام في الأسرة المفردة أو أسرة مزدوجة.
اكسسوارات للمهد
تتوفر أسرّة وأرائك قابلة للطي وأسرّة تحويل والأسرة الهجينة للأطفال ، وينبغي أن يراعي اختيارهم عمر الطفل ورغباته.

دعونا نطبق التصاميم الخشبية والمعدنية الأنبوبية.

لضبط الفردية من مساند الرأس ومساند للذراعين.
يناسب الأطفال الصغار بشكل أفضل سرير مضغوط ، ولكن الأسرة المريحة التي لا تشغل مساحة كبيرة في الشقة ، بالإضافة إلى أنها يمكن أن تكون مزينة بإكسسوارات تزيينية.

آلية البندول للسرير.

تم تصميم مجموعة التوقف لتجميع الأسرة باستخدام آلية الرفع.

ينطبق على جميع التصاميم السرير.
بالنسبة إلى تلاميذ المدارس ، ستصبح سرير الطاولة أو سرير خزانة الملابس عملية ، حيث لا يمكنك الاسترخاء فقط بل العمل أيضًا.

الملحقات لإمكانية تثبيت الجزء السفلي من السرير على مستويين.

موصل لإطار السرير 70 ملم.

لإنشاء سريرك المثالي ، تحتاج إلى اختيار أنسب نوع السرير وملحقاته على وجه التحديد لشقتك.
حسنًا ، بالنسبة للمراهقين ، فإن الأريكة القابلة للطي أو الأريكة التي تتميز بآلية تحويل عالية الجودة ستكون خيارًا مثاليًا ، لأن الطفل سوف يستخدمها كثيرًا. حسنًا ، إذا كان هناك طفلان في العائلة أو الضيوف في كثير من الأحيان يأتون إليك ، وليس هناك الكثير من الأماكن في الشقة ، فإن السرير بطابقين مع اتصال من قطعة واحدة سيكون الخيار المثالي.

آلية خفض الجدار الأمامي لسرير الطفل ("الزر").

بمثابة دعم للأثاث مجلس الوزراء.
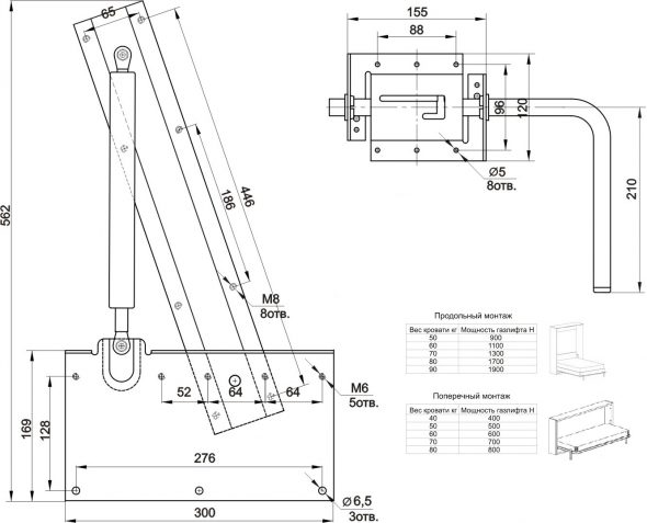
ملحقات للأسرة مع آلية الرفع
إنها آلية رفع تعتمد على ممتص صدمات الغاز ، أو نابض أو نظام مزود بمصعد يدوي. تعمل الملحقات الخاصة بالسرير بآلية الرفع على حل العديد من المشكلات في وقت واحد: عدم توفر مساحة للأشياء الموجودة في الخزانة والنوم غير المريح.
أيضا الأسرة مع هذه الآلية لديها العديد من المزايا:
- وجود مربع الكتان.
- سهولة الاستخدام
- ضمان نوم مريح ؛
- حماية الأشياء من الغبار.

لتنظيم إطارات سرير خشبية مرنة في منطقة الرأس والقدم ، وكذلك للأثاث المكتبي.

موصل زاوية للأسرة 100 مم ، فولاذ ، مطلي بالكروم.
اكسسوارات للأسرة قابلة للطي
يمكن اعتبار هذا النوع من الملحقات على مثال سرير خزانة. في هذا التصميم يستخدم:
- زوج من الملحقات لأسرة قابلة للطي مع دعم دوّار والتأكيد على امتصاص الصدمات الغازية ؛
- مجموعة من مواد التركيب.
- تجهيزات السلامة وأنواع مختلفة من القيود والسحابات للاستخدام السلامة.

لإصلاح السرير.

مثل هذه الأسرة لن تخلق مشاعر السائبة ، بل العكس - الفضاء.
هذه التجهيزات تجعل الأثاث أكثر تنوعًا ومتحركة.

يقصد القارنة - القيقب لربط العناصر الخشبية للسرير.

يمكن تنظيم الاستخدام الفعال لمساحة الغرفة عن طريق إضافة آلية تحويل إلى السرير.
الأنواع الرئيسية للأعطال تنجيد الأثاث
الملحقات ، مثلها مثل أي شيء آخر ، يمكن أن تفشل بمرور الوقت ، بغض النظر عن مدى حسن معاملتك. لذلك ، سننظر في الأنواع الرئيسية لأعطال تنجيد الأثاث ، وكذلك تقديم نصائح حول كيفية تجنب هذه الإخفاقات.
- المشكلة الأكثر شيوعًا هي انحراف اللوحة الريفية في إطار الأثاث. يمكن حل هذه المشكلة عن طريق استبدال اللوحة بشرائح خشبية ، أو الخشب الرقائقي أكثر دواما.
- الصرير شائع جدا. يمكن أن يكون مصدر الصوت غير السار عناصر عمل غير مشبعة للأثاث المنجد. يمكن أن يكون حل هذه المشكلة هو آليات التشحيم العادية. لهذه الأغراض ، يمكنك استخدام زيت الآلة أو المنزلية.
- أيضا في كثير من الأحيان هناك انهيار لآلية التحول. غالبًا ما يحدث هذا بسبب انسداد أو تثبيت غير موثوق به للآلية نفسها ، يتم حل المشكلة عن طريق تنظيف أو إعادة إصلاح الآلية. في أسوأ الحالات ، يجب استبدال الآلية بالكامل.

الحفاظ على توازن السرير.

يمكن تنظيم الاستخدام الفعال لمساحة الغرفة عن طريق إضافة آلية رفع إلى السرير توفر الوصول إلى مكان الغسيل.

هذا ينطبق على أي تصاميم للأسرة.
فيديو: ملحقات لأسرة قابلة للطي للتركيب العرضي والصلب
الملحقات للأسرة: 50 الأفكار الصورة
كيفية سحب كرسي الكمبيوتر بأيديهم.
اختيار مسامير لتجميع الأثاث بحكمة
نصنع الرفوف في الحمام بيديك
الأغطية الناعمة للبراز تفعل ذلك بنفسك
أحجام وميزات أدلة الكرة للأدراج.
























































مساء الخير
نحن مهتمون بملحقات أسرة الأطفال. قل لي ، كيف يمكنني الاتصال بك؟
مرحبًا ، نحن مهتمون بملحقات سرير الأطفال أو السحابات البلاستيكية أو الأقواس السفلية. هناك حاجة ماسة للغاية
آلية خفض الجدار الأمامي لسرير الطفل ("الزر"). 2 قطعة
مرحبا هل تبيع؟
المهتمين في العيينة البني ، ورفع الجدار الأمامي للسرير
نحتاج إلى آلية لخفض الجدار الأمامي لسرير الأطفال ، أو حيث لا يمكننا العثور عليه. هل يمكنني طلب منك؟
مساء الخير ، أنا مهتم بآلية البندول للسرير ، أخبرني كيف أتصل بك
مرحبًا ، يوجد في الجزء العلوي من القائمة متجر على الإنترنت. هناك يمكنك أن تجد ما تحتاجه. التسليم في جميع أنحاء روسيا.
مساء الخير ، فقدنا التجنيب المعدني لخفض الجدار ، هل يمكنني طلب ذلك؟ شكرا لك
مرحبا ، كيف تحصل على الأكمام من آلية البندول للسرير؟
أهلا وسهلا!
اسمحوا لي أن أسألك ، هل لديك آليات محورية للأثاث المنجد في الزاوية: "مقص"؟ أود شراء
مرحبا
المهتمين في الملحقات لسرير ، أي السحابات أو الأقواس لمنصة مرتبة. حاجة ملحة للغاية!
مرحبًا ، نحتاج إلى مثبتات على السرير ، تحمل آلية حذف الجدار الأمامي ، هل من الممكن طلبها؟
مرحبًا ، أنت تقوم بعمل زر لخفض الشريط الأمامي لمحول السرير ، والأزرار نفسها عبارة عن قطعتين؟
يوم جيد ، هل من الممكن شراء آلية البندول ، باللون الأبيض فقط؟
مرحبًا ، نحتاج حقًا إلى آلية لخفض الجدار الأمامي لسرير الأطفال ، أو حيث لا يمكننا العثور عليه. هل يمكنني طلب منك؟
أحتاج فعلاً إلى آلية لخفض الجدار الأمامي لسرير الأطفال ، أو حيث لا يمكننا العثور عليه. هل يمكنني طلب منك؟
مرحبا مهتم بآلية لخفض الجدار الأمامي لزر السرير. هل تبيع في التجزئة؟ كيف تطلب والسعر؟
أهلا وسهلا! نحتاج حقًا إلى آلية لرفع وخفض الجدار الأمامي لسرير الأطفال (العين البلاستيكية). هل يمكنني طلب منك؟
مساء الخير هناك حاجة إلى ربط للجدار المتحرك لسرير الأطفال Gandylian. هل يمكنك المساعدة؟
مساء الخير ، أخبرني أنك غير متاح عن طريق الخطأ. التبعي سدادة عن البندول لسرير BANKIKI؟
المهتمين في العيينة البني ، ورفع الجدار الأمامي للسرير ومسامير التثبيت لهؤلاء أصحاب. كيف يمكنني طلب ذلك؟
تحتاج مجموعة من خفض الجدار الأمامي للسرير ، وكيفية ترتيب ذلك؟
كيف تتصل بك؟ تحتاج إلى آلية لسرير قابلة للطي نصف السرير
مرحبا تحتاج إلى رفع الغاز SUSPA liftine TUP 16-6 016 1800N إنتاج ألمانيا
مرحبا أنا مهتم بخطافات الجدار المتحرك ، من سرير Gandilyan Monika. هل لديك منهم؟ أود شراء!
مساء الخير هل لديك إكسسوارات Pali لوضع المراتب على مستويات مختلفة؟
نحتاج إلى جزء لسرير المناولة ، يستخدم لإصلاح جانب واحد من السرير عندما يكون في مواجهة. يمكنني ارسال صورة
مساء الخير نحن مهتمون بآلية خفض الجانب الخلفي للمهد ، هل لديك مخزون؟