كيفية جعل تعديل أبواب خزانة الملابس المنزلقة
قياس سبع مرات أو كيفية حساب مقصورة خزانة؟

خزانة ملابس جميلة مع إضاءة وجرف جانبي إضافي
عند شراء منزل جديد أو نقله أو إعادة تطويره أو عندما ترغب في تحديث تصميم الشقة ، نفكر دائمًا في نوع الأثاث الذي تختاره ، بحيث يكون مريحًا وجميلًا وعمليًا. بالطبع ، بالنظر إلى الخيارات ، نعتمد على أبعاد الأريكة أو الطاولة أو الرف في المستقبل. الكل يريد أن يحتل الأثاث الموجود في الشقة أقل مساحة ممكنة ، خاصةً إذا كانت مساحة الأرضية لا تسمح لك بشراء ما تريده بصريًا.

خزانة متحركة. بنيت في مكانه الغرفة
خزانة الملابس والكتان والأمتعة الشخصية ضرورية للغاية في أي غرفة. إنه مناسب لتخزين كل شيء يتم استخدامه يوميًا أو دوريًا ، مما يؤدي إلى تحرير الأشياء من الغبار ، والتلوث بالسوائل المنزلية. بالنسبة للكثيرين منا ، عندما نسمع كلمة خزانة الملابس ، بادئ ذي بدء تأتي صورة لتصميم مألوف مع الميزانين والأبواب الزجاجية والأدراج. يمكن شراء هذا الأثاث بسرعة في المتجر ، ببساطة التعبير عن أبعاد البائع واختيار الألوان وأيضًا نوع المنتج. كما تبين الممارسة ، لا يتم بيع المنتجات المناسبة دائمًا.

تتيح لك خزانة الملابس ، المخفية وراء الأبواب المنزلقة ، استخدام المنطقة على النحو الأمثل وإخفاء كل شيء عن أعين المتطفلين
في سوق الأثاث ، ظهرت حداثة مؤخرًا ، تكتسب حب المشترين ، خالية من العديد من عيوب خزانة الملابس التقليدية ، المجهزة بأبواب مفصلية تمنع الوصول أو المدخل أو المساحة عند فتحها. يمكن بناء خزانة الملابس في مكان مناسب ، يتم توفيره عند بناء العديد من الشقق وغالبًا ما يسبب التشويش حول كيفية استخدامها ، دون إفساد الصورة الكاملة لمساحة المعيشة.

خزانة ملابس معكوسة للممر
يمكن تركيب هذه الخزانة في الحمام ، وغرفة النوم ، وغرفة المعيشة ، والمطبخ ، والممر ، مما يزيد من المساحة نظرًا للأبواب ذات المرايا ، على سبيل المثال. زائد ضخمة لها أبعاد غير محدودة (الطول والعرض والعمق والارتفاع). أدناه نحن نعتبر قواعد الحساب الصحيح لهذا النوع من الخزانات.

خزانة ملابس لغرفة المعيشة ذات مناظر طبيعية جميلة على الأبواب
المحتوى
من أين تبدأ؟

حساب حجم أبواب خزانة الملابس
بعد اختيار المكان المناسب للتثبيت ، ورسم رسم باليد ، نبدأ في حساب ورسم التصميم الأولي للهيكل. تؤخذ جميع الكائنات الموجودة على مقربة أو في اتصال مع الهيكل في الاعتبار ، ويتم قياس المسافات ، وسمك المواد ، وتؤخذ مخالفات الجدار في الاعتبار. الشرط الأساسي للتثبيت الناجح للخزانة هو قياس الزوايا. يجب أن يكون هناك مائة في المئة من اليقين أنهم مباشرة (90 ٪).

خزانة ملابس ذات أبعاد ووصف
تتكون خزانة الملابس القياسية من السقف والجدران الجانبية والجدران والأسفل والسقف والطابق السفلي والأبواب والجدار الخلفي والملء الداخلي (أرفف ووحدات مع أدراج وحاملات للأحزمة وسلال قابلة للسحب وشماعات وأذرع سقفية وما إلى ذلك) يجب أن تؤخذ أبعاد جميع الأجزاء في الاعتبار أثناء إعداد تصميم المنتج.

رسم خزانة الملابس في مكانه
حساب حجم مجلس الوزراء

من أجل الحساب المبدئي ، نحتاج إلى تحديد L - ارتفاع الفتح وعرض B - الافتتاح

المرحلة الأولى من تصميم مجلس الوزراء - العلامات
- ارتفاع. القاعدة الأساسية التي يجب اتباعها هي عدم الاعتماد فقط على معايير الجدران. لماذا؟ الاتصال مع السقف لن يسمح لخزانة الملابس بالوصول إلى الموضع المطلوب. هذا هو بناء ضخمة إلى حد ما ، والتي عادة ما يتم تجميعها أفقيا ، وتركيبها عموديا. لذلك ، فإن أهم قيمة لحساب الحجم الصحيح هي قطري ، طوله عادة أقل من حوالي 10 سم في ارتفاع الجدار الخلفي. من الأفضل هنا استخدام الصيغة √ (a²-b²) = x. على سبيل المثال: 2700 (المسافة من الأرض إلى السقف 2700 مم) × 27 = 72900 (a2) ؛ 50 (عمق الخزانة 50 مم) × 50 = 2500 (ب 2) ؛ 72900 - 2500 = 70 400. استخرج الجذر (استخدم الآلة الحاسبة عبر الإنترنت) من 70 400 ، نحصل على 265.32. ندير ما يصل إلى 265. إجمالي ، يبلغ ارتفاع منتجاتنا 2650 ملم.
- العمق. يجدر بك إجراء حجز على الفور بأن هذه المعلمة يجب ألا تقل عن 550 مم ، أو تزيد عن 650 مم أو أكثر ، نظرًا لأن الطول القياسي لشريط الشماعات هو 450 ملم ، وبالتالي فإن ملابسك ، خاصة السترات الضخمة والمعاطف الفرو ، ستشعر بالراحة بهذه الضيقة شروط. يجب توضيح أن العمق يتم اختياره بشكل مختلف تمامًا ، بناءً على تفضيلاتك وأبعاد الغرفة.
- العرض. كل شيء أبسط بكثير هنا. نقيس الأبعاد الداخلية للفتحة ، وطرح 16 مم من هذا الحجم (سمك اللوح) ، نحصل على قيم الفتحة المراد تركيبها.

المعالم الرئيسية لخزانة ملابس منزلقة

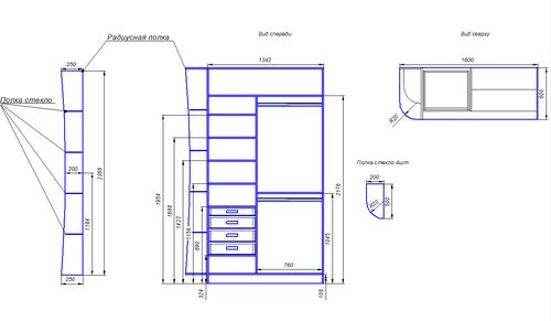
رسم موسع لخزانة الملابس بعرض 2860 مم وثلاثة أبواب
احسب حجم الباب

حساب حجم أبواب خزانة الملابس للطراز المدمج

حساب حجم الأبواب لمجلس الوزراء
في هذه الحالة ، فإن الشيء الرئيسي هو عدم ارتكاب الأخطاء التي تحدث عند تثبيت خزانة الملابس المنزلقة.
- يجب ألا تكون معلمات الورقة الواحدة أكبر من 2800 × 1200 مم.
- لا يستحق صنع أبواب ضيقة جدا.
- من المهم أن تأخذ في الاعتبار تداخل اللوحات.

تصميم أبواب منزلقة لخزانة الملابس
حساب العرض. عند تحديد طول اللوحة يجب طرحها من ارتفاع الفتحة 40-45 مم (المسافة المطلوبة للتعليق). عند عرض الفتحة ، نضيف طول التداخل بالملليمتر ونقسمه على عدد الأبواب. على سبيل المثال ، 1584 مم + 26 مم / 2 = 805 مم (عرض ورقة واحدة).

تخطيط أبواب خزانة الملابس (منظر علوي)
احسب حجم الصناديق

تفاصيل الأدراج لخزانة الملابس
الأدراج هي مهمة جدا وعملية ملء مجلس الوزراء. لتحديد حدود الصندوق ، من الضروري أن تأخذ في الاعتبار بيانات جميع تفاصيلها: الأمامي والسفلي والجدار الجانبي والجدار الخلفي والدليل.
- الواجهة. يجب أن يكون حجم الفتح أكبر 4 مم من عرض الواجهة. الارتفاع تعسفي. تأكد من ترك أخدود في الواجهة لتثبيت المقبض.
- القاع. عند تحديد حجم الجزء السفلي من الخزانة ، تحتاج إلى تحديد ما إذا كان سيتم تسميرها أو إدخالها في الأخاديد. باستخدام الطريقة الأخيرة ، من المهم مراعاة سمك المادة وعمق الأخدود.
- جدار. طولها مضاعف أو أطول بقليل من طول الدليل. ارتفاع الجدران الجانبية والجدار الخلفي للصندوق يتراوح ارتفاعهما بين 40 و 50 مم أو أقل من ارتفاع الواجهة.

يؤثر حجم الصندوق على جميع معلمات العنصر المنزلق: عرضه وعمقه وارتفاعه
طريقة حساب المواد والمكونات
تأكد من تجميع جدول به قائمة بجميع أجزاء الصندوق الخارجي والملء الداخلي (الملحقات ، السحابات ، المقابض) مع الإشارة إلى حجمها وكميتها. هناك العشرات أو حتى المئات من هذه الأجزاء ، اعتمادًا على تكوين الخزانة. تأكد من مراعاة سمك الحافة ، وكذلك اسم المادة لكل جزء. يمكنك استخدام هذه البيانات لاحقًا ، مع حساب تكلفة الخزانة.

مثال على ملء خزانة ملابس بثلاثة أبواب بلوحة كي ومكنسة كهربائية
بالنسبة لقطع الألواح الخشبية ، تكون قائمة الأجزاء ذات الأبعاد كافية ، والتي يمكنك تطبيقها على ورشة النشر ، واختيار المواد هناك وطلب تصنيع الفراغات لخزانتك.

تصميم خزانة بعرض 3750 مم مع قياسات مفصلة
القيام بحساب المواد والمكونات ، لا يمكنك إهمال الفجوات والمسافات البادئة.
- يمكن أن يصل ارتفاع الغطاء إلى 100 مم.
- الفجوة على كل جانب من واجهة الدرج من 1.5 مم.
- يجب أن يكون العبوة الداخلية للمنتج أصغر بنحو 10 سم من العلبة الخارجية.

المواصفات التقريبية لخزانة الملابس
حساب تكلفة مجلس الوزراء

حساب تقريبي لتكلفة خزانة الملابس ، وهذا يتوقف على التكوين
مع وجود جدول بين أيدينا يحتوي على قائمة وكمية جميع الأجزاء والمواد اللازمة ، نكتب في العمود الأخير تكلفة كل مركز ، مع التركيز على السعر في المتجر. هنا من الضروري إيلاء اهتمام خاص لقطع الأجزاء في ورقة من لوحة الجسيمات (هيكلها ، وعرض القطع ، والقيم الإجمالية ، والتي ينبغي أن تؤخذ 20 ملم أقل من المعلمات المطلوبة).

مثال على حساب سعر خزانة الملابس في برنامج CupeCalc v1.0 ، الذي بني على أساس Microsoft Excel باستخدام وحدات ماكرو VBA
بواسطة متر مربع يتم حساب أجزاء من الصفائح المعدنية ، إدراج مختلف ، على سبيل المثال ، المرايا. من أجل الوضوح ، نأخذ الجزء السفلي من الهيكل ، مصنوع من اللوح. نحن نأخذ كأساس تكلفة ورقة لكل متر مربع ، وعرض وطول القاع المطلوب (اللوح: 1100 روبل / م² ؛ أسفل: 1.5 م 2 م = 3 م² 1100 ص. = 3300 ص.) المواد الطويلة ، مثل الألواح ، تعتبر عن طريق تشغيل متر ، ولا تسبب أي صعوبات في التقييم. تعتبر المقابض والمزالج والسحابات واحدة تلو الأخرى.

مصمم خزائن
لذلك ، بعد تحليل المعلومات التي قرأتها للتو ، يمكنك البدء في حساب مقصورة خزانة الملابس بشكل مستقل.

خزانة ملابس غير عادية لغرفة النوم مع اثنين من الأبواب والإضاءة ورفوف جانبية إضافية
فيديو: خزانة ملابس منزلقة. الحجم الصحيح والحساب
50 خزانة ملابس عملية وعملية في الداخل:
كيفية جعل تعديل أبواب خزانة الملابس المنزلقة
خزانة ملابس حول المدخل - حل أنيق واقتصادي
ما ينبغي أن يكون حجم مقصورة خزانة الملابس؟
تعليمات لتجميع خزانة الملابس بأيديهم.
نحن نصنع خزانة ملابس مريحة بيديك
بدائل لملء خزانة الملابس























































