أثاث عالي التقنية - جمال في براعة
كيف تصنع كرسي قابل للطي بيديك؟
الصيد هو واحد من وسائل الترفيه الشعبية للرجال. استمتع بقضاء وقت ممتع على شاطئ الخزان. يفهم الصيادون ذوو الخبرة أن الصيد المريح يتطلب وضعية جلوس مريحة. الجلوس على السجلات أمر غير مريح ، وسحب كرسي ضخم خلفك ليس خيارًا أيضًا. سيكون الحل المثالي لهذه المشكلة هو كرسي قابل للطي ذو ظهر ، والذي عندما يكون مطوي مضغوطًا ، وعند استخدامه ، سيساعد على عدم تحميل الظهر ، الذي سرعان ما سئم من الجلوس لفترة طويلة.

كرسي قابل للطي - مثالي لعشاق الصيد والترفيه في الهواء الطلق.

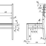
يمكن أن يكون ارتفاع الكرسي 350 مم - 450 مم.
خيارات التسوق ليست مناسبة دائمًا ، لأنه غالبًا ما تكون هذه المنتجات غير موثوق بها للغاية أو باهظة الثمن. لذلك ، فإن الطريقة الأكثر فعالية هي صنع كرسي قابل للطي للصيد بيديك. لا يساعد البراز العصامي في توفير المال فحسب ، بل يسمح لك أيضًا بتجوال الخيال وتصنيع منتج جيد من مواد عالية الجودة. مزايا مثل هذا الكرسي في انضغاطه واستقراره وسهولة النقل وصنعه البسيط.

لا يمكن استبدال قطعة الأثاث هذه في المطبخ ، في البلد ، لأنه عندما يتم طيها فهو صغير بما يكفي ولا يشغل مساحة كبيرة.

لتصنيع كرسي قابل للطي ، يمكنك استخدام أي نوع من أنواع الخشب ، وسوف يمنحه البتولا القوة.
المحتوى
مجموعة متنوعة من الكراسي القابلة للطي
الإصدارات الأكثر شيوعًا لرؤساء مثل هذه الخطة - هي خيارات مع الظهر وبدون ظهر.
- البراز بدون ظهر أسهل في الأداء وأقل تكلفة من حيث المواد ، ومع ذلك ، فإن الخيار الأول هو أكثر ملاءمة للاستخدام. يمكن أن يكون الجزء الخلفي من الكرسي مصنوعًا من الخشب ، أي أن المنتج سيكون بناءًا صلبًا ، أو يمكن تصنيع المقعد والظهر من قماش متين ممتد على الإطار الأساسي.
- يمكنك أيضًا تقسيم الكراسي حسب نوع الساقين - حيث يمكن أن تكون مستقيمة وعُرَضية ومتينة. يمكن أن تكون مادة الكرسي معدنية أو بلاستيكية أو خشبية. يتطلب تصنيع الكراسي المعدنية أو البلاستيكية أدوات ومهارات خاصة ، لذلك اجعلها بنفسك صعبة للغاية.
- الخيار مع البراز الخشبي هو الأكثر بساطة ، وذلك بفضل مجموعة واسعة من المواد ، وبأسعار معقولة وبساطة من الخشب في العمل.

للوهلة الأولى ، يشبه رسم هذا الكائن مكعب روبيك ، ومن غير الواضح تمامًا كيف يمكنك بناء شيء ما باتباعه.

ومع ذلك ، فإن الكرسي الجاهز يقترح فكرة مختلفة قليلاً - كل شيء مبتكر بسيط.

تذكر أن الأشرطة الوسطى توضع بنفس الطريقة الخارجية والعريضة.
المواد والأدوات
استنادًا إلى حقيقة أن البديل بمواد من الخشب هو الأكثر بسيطة والميزانية ، وسوف نختار ذلك. سيكون أساس الكرسي عبارة عن قضبان خشبية ، يعتمد حجمها على حجم كرسي معين. وسوف تكون بمثابة الساقين وحاملة للظهر.

عند بدء التجميع ، من الضروري أولاً وضع البراغي المحورية على أرجل الكرسي ، فلا ينبغي أن يكون المحور في منتصف الساقين ، ولكن أقرب إلى أعلىها ، وإلا فسيكون الكرسي مرتفعًا ولن يصبح مقاومًا بشكل خاص.

الكرسي القابل للطي هو جهاز مفيد جدًا في المنزل.

دون الخوض في الأفكار ، دعنا ننتقل إلى الإجراءات العملية.
يمكن أن تكون مواد المقعد والجزء الداعم للغاية لظهر الشخص عبارة عن شرائح خشبية أو قماش سميك ، مثل القماش المشمع. يجب أن يتم اختيار الشجرة من حيث النوعية ، من المستحسن إيقاف الاختيار على الدرجات الصلبة من الخشب (خشب البتولا ، والبلوط وغيرها) حيث أن عمر خدمة المنتج يعتمد عليها. لتوصيل الأجزاء في تصميم واحد ، ستحتاج السحابات ، في حالتنا ، هذه هي البراغي والصواميل وغسالات للمفاصل المنقولة ومسامير على الشجرة للمفاصل الثابتة.

عند التجميع ، لا تنسى أن أغطية الصواميل والمسامير تحتاج إلى أن تكون مطاردة.

عند التجميع ، لا تنسى أن أغطية الصواميل والمسامير تحتاج إلى أن تكون مطاردة.

الكرسي القابل للطي هو جهاز مفيد جدًا في المنزل.
من الأدوات لتنفيذ هذا العمل ، تكفي مجموعة قياسية من النجارين ، والتي هي في المنزل لكل مالك تقريبًا ، بما يلي:
- الحفر.
- مفك البراغي أو مجموعة مفك البراغي.
- منشارا للخشب والمعادن.
- الشدات أو السكين أو المقص إذا كان عليك العمل بقطعة قماش ؛
- ملف ورق زجاج لإزالة اللاحقة من العيوب السطحية.

لتصنيع كرسي قابل للطي ، يمكنك استخدام أي نوع من أنواع الأخشاب ، حيث يمنحها خشب البتولا القوة ، لكن الصنوبر سوف يسهل عملية الإنشاء إلى حد كبير ، فقط مركباتها غير متينة ويمكن أن تخف بسرعة.

كرسي قابل للطي - مثالي لعشاق الصيد والترفيه في الهواء الطلق.
أيضًا في المرحلة النهائية ، سيتطلب الورنيش أو التشريب على الخشب ، والذي يعد ضروريًا ليس فقط لإعطاء الجمال مظهرًا ، بل أيضًا للحماية من الطفيليات والرطوبة.

المنتج الموصوف مصنوع بدون مقبض ، ومع ذلك ، فإن هذه الفجوة سهلة الإزالة إلى حد ما عن طريق وضع مقابض محمولة بين الأرجل الداخلية.

من دون صعوبة كبيرة ، يمكنك صنع مثل هذا الكرسي بيديك ، حتى دون أن تكون سيد نجار.
إجراءات العمل
عملية صنع الكرسي بسيطة للغاية ، وحتى الشخص الذي ليس لديه مهارات مهنية في هذا العمل يمكنه التعامل معه.
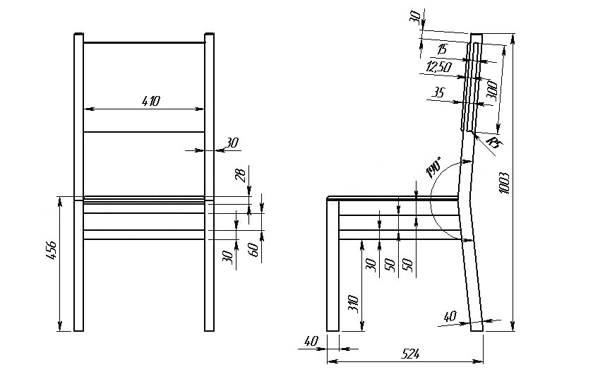
- من الضروري تجميع المقعد عن طريق ربط القضبان العرضية بقضبان القاعدة.
- يتبع ذلك تجميع الإطار الذي يتألف من قضيبين ، يتم تثبيت قضبان مسند الظهر فوقه ، في منتصفه - العارضة الجانبية للمقعد (في الجزء السفلي من الإطار سيكون بمثابة الأرجل الأمامية للمنتج).
- تم تجهيز الأرجل الخلفية بنقطتين عرضيتين متحركتين في الأعلى والأسفل.
- العارضة العلوية متصلة بالظهر ، السفلي - بالإطار الرئيسي عن طريق الاغلاق.
- يتم توصيل المقعد بالإطار الأوسط أيضًا بمسامير. والنتيجة هي كرسي يطوى ، عند رفعه ، إلى تصميم مضغوط لا يشغل مساحة كبيرة وله وزن صغير.
- في حالة العمل مع الأقمشة أو الجلد للحصول على مقعد وظهر ، توضع حقيبة مُقاسة مسبقًا ومخيطة على الشرائح في عملية التجميع بدلاً من الأجزاء الخشبية المستعرضة.

الكرسي القابل للطي هو جهاز مفيد جدًا في المنزل.

يمكن استخدامه في المرآب ، حيث لا توجد دائمًا مساحة كافية ، للاستيلاء على الطبيعة وببساطة ، إذا لزم الأمر ، لاستخدامها في الشقة.

لا يمكن استبدال قطعة الأثاث هذه في المطبخ ، في البلد ، لأنه عندما يتم طيها فهو صغير بما يكفي ولا يشغل مساحة كبيرة.
بمجرد أن يصبح الكرسي جاهزًا ، ستحتاج إلى إنجاز العمل النهائي. أولاً ، يجب أن تتخلص من كل النتوءات والنفايات الزائدة. غرقت البراغي في قاعدة الخشب ، والملف وورق الصنفرة يزيل العيوب ، وستضيف الورنيش نعومة وتؤكد اللون الطبيعي للخشب ، والذي سيكون بحد ذاته جميلًا بالفعل. ومع ذلك ، إذا كان الخيال يتطلب المزيد من الجمال ، يمكنك استخدام مهارات حرق الخشب ونحته ، أو إعطاء المنتج شكلاً أكثر إثارة في مرحلة التصميم.

كل ما نحتاج إليه هو معدات تشغيل الخشب ، وهي متوفرة في كل مرآب تقريبًا أو ورشة عمل لهواة نجارة ، مهارة أولية في العمل مع الخشب ، والأهم من ذلك ، الرغبة في صنعه.

يمكن استخدامه في المرآب ، حيث لا توجد دائمًا مساحة كافية ، للاستيلاء على الطبيعة وببساطة ، إذا لزم الأمر ، لاستخدامها في الشقة.
عند سؤالك عن كيفية صنع كرسي للصيد بيديك ، يمكنك الحصول على منتج رائع يخدم بأمانة لفترة طويلة. في الوقت نفسه ، يمكنك توفير الكثير من المال والسماح لخيالك بالطيران من خلال إنشاء عمل تأليف فريد حقًا.

إذا لزم الأمر ، يمكن تغيير ارتفاع الكرسي المُجمّع ؛ وللقيام بذلك ، يكفي إدخال شريط مختلف بين القضبان الوسطى للمقعد ، مع قسم يبلغ حوالي 20 × 20 مم.

لتصنيع كرسي قابل للطي ، يمكنك استخدام أي نوع من أنواع الأخشاب ، حيث يمنحها خشب البتولا القوة ، لكن الصنوبر سوف يسهل عملية الإنشاء إلى حد كبير ، فقط مركباتها غير متينة ويمكن أن تخف بسرعة.

ومع ذلك ، فإن الكرسي الجاهز يقترح فكرة مختلفة قليلاً - كل شيء مبتكر بسيط.
فيديو: كرسي قابل للطي بيديك. كرسي قابلة للطي محلية الصنع
كرسي مرتفع قابل للطي افعل ذلك بنفسك: 50 صورة أفكار
أثاث عالي التقنية - جمال في براعة
كيفية تنظيف الأثاث من سكوتش بالوسائل المرتجلة
أثاث للقاعة. الدقيقة من الاختيار الصحيح.
كيفية إزالة الورنيش القديم من الأثاث في المنزل.
مجموعة المطبخ لمطبخ صغير
تصميم أثاث الأطفال لغرفة صغيرة























































