كيفية جعل حجم خزائن المطبخ (الرسومات ، نصائح).
الأحجام القياسية من خزائن المطبخ

مطبخ مريح بألوان زاهية مع أثاث أنيق ، وستائر خفيفة ، مزينة بطبعات الأزهار
في المطبخ ، يبحث جميع أفراد الأسرة عن الراحة والراحة. متى يمكنك الاسترخاء ، إن لم يكن أثناء الوجبة؟ لذلك ، يعد اختيار الأثاث للمطبخ أمرًا مهمًا ، ويجب إيلاء اهتمام لا يقل عن مجموعة غرف النوم لاختيار عناصر الأثاث للمطبخ. لذلك ، تحتاج إلى تنظيم المساحة في مطبخك بشكل صحيح. قبل الاتصال بمصنعي الأثاث لطرح الأسئلة ، يقرر الملاك لأنفسهم ما إذا كانت خزائن الملابس ذات الحجم القياسي مناسبة لمساحة المطبخ الخاصة بهم ، أو يتعين عليهم العمل مع المصمم وطلب شيء فردي. هناك مطابخ ، صغيرة للغاية وكبيرة - كاملة الطعام. في أي حال ، هناك حل لأي غرفة.

مطبخ أبيض كبير جميل مع أثاث مريح وجزيرة في الوسط.
تستخدم أحجام المطبخ القياسية في المصانع ، وذلك لتقليل الوقت والمال اللازمين لإنتاج الأثاث. بعد العثور على شركة لطلب الأثاث ، يأتي شخص مدرب بشكل خاص ، ويأخذ جميع القياسات اللازمة ، ويفحص ما هو مطلوب للمشروع. ومع ذلك ، لا يتم أخذ ميزات الغرفة والتخطيط في الاعتبار فقط ، بل يتأثر اختيار المطبخ أيضًا بتفضيلات أصحاب الذوق ونمو أفراد الأسرة وتصميم المناطق الداخلية المستقبلية ووجود تقنية مضمنة معينة. يؤخذ كل شيء في الاعتبار بأدق التفاصيل ، لأنه يجب أن يكون المطبخ مريحًا في الاستخدام ، ويجب توفير مظهر جمالي.

صالة مطبخ كونتري
بالنسبة لأولئك الذين يرغبون في توفير المال على معدات المطبخ ، هناك حل مبتكر شائع مثل الأنظمة المعيارية. يتم تجميع مجموعات المطبخ في هذه الحالة من الخزانات الجاهزة ، والتي لها أبعاد ومعايير قياسية. عند طلب المطابخ المركبة على وحدات ، تكون اللحظة مهمة للغاية - لكل مصنع دور خاص في إنتاج الوحدات من 5 إلى 20 سم ، على سبيل المثال ، ينتج أحد المصانع وحدات مطبخ بعرض 45 و 60 و 90 سم ، وآخر 40 و 80 و 120 وما إلى ذلك. د. يؤخذ هذا العامل في الاعتبار عند شراء الأجهزة المنزلية وتحديد الطول الكلي للأثاث.

أحجام عينة لخزانات المطبخ وحدات القياسية
المحتوى
مثلث العمل القاعدة

حكم المثلث العامل في المطبخ ، يوحد أهم المناطق في المطبخ
ومع ذلك ، فإن الفروق الدقيقة أعلاه ليست كل ما هو ضروري لتنظيم مساحة المطبخ بشكل صحيح. لا تزال بحاجة إلى استخدام قاعدة مثلث العمل.
يجب وضع جميع مكونات أثاث المطبخ ، بدءًا من الخزانات ومغسلة الضخ ، على أساس بعض قواعد بيئة العمل والسلامة والراحة. ليس من دون مقابل أن يكون هناك علم فنغ شوي ، حيث يتم أخذ قوانينه في الاعتبار من قبل العديد من المصممين. يمكن ربط مبادئها بحكم المثلث العامل ، ومن السهل شرح موقع الأشياء في مكان أو آخر.

المطبخ وظيفية ومريحة الداخلية
المجالات الرئيسية في مثلث العمل هي:
- سطح الطهي على شكل موقد ، كونترتوب ، ميكروويف ؛
- منطقة حيث يتم تخزين المنتجات لفترة طويلة ، وعناصرها هي الثلاجة ، الثلاجة ؛
- منطقة "نظيفة" ، بما في ذلك بالوعة المطبخ وغسالة الصحون.
قد يبدو جذابًا بالنسبة للكثيرين لتثبيت مغسلة بجوار الموقد ، وكذلك ثلاجة في الحوض. لكن مثل هذا الترتيب للتكنولوجيا ليس له ما يبرره. سوف تتلوث الثلاجة طوال الوقت ، وسوف تبث الدهون أثناء عملية الطهي الأطباق المغسولة. سوف تسقط المياه من الصنبور على صينية ساخنة. هذا غير مريح وغير عملي وغير آمن. لا عجب في فنغ شوي لا يمكن وضع عناصر من عناصر النار والماء على مقربة من بعضها البعض.

تصميمات نموذجية لمجموعات المطبخ ، مبنية باستخدام قاعدة المثلث
الأجهزة التي تؤثر على خيارات المطبخ

مثال على الأجهزة المدمجة لأثاث المطبخ
للحصول على التصميم الأمثل لأثاث المطبخ ، عليك أن تقرر مبدئيًا الأجهزة المدمجة التي سيتم استخدامها الآن أو بعد ذلك بقليل.
لتشمل جزءا لا يتجزأ من التكنولوجيا:
- غسالة
- غسالة الصحون
- ثلاجة
- موقد وفرن أو موقد قياسي ، إلخ.
يجب تحذير المصمم مسبقًا بشأن أبعاد الأجهزة المدمجة ، والتي يتم اختيارها للمطبخ.

موقع بالقرب من الموقد وثلاجة في مطبخ صغير جدا
لا ينصح الموقع بالقرب من الموقد والثلاجة. نظرًا لتسخينها ، سيزداد استهلاك الطاقة في الثلاجة ، مما قد يؤدي إلى تلفها. كما ينبغي التفكير في المسافة من سطح العمل إلى الثلاجة ، لأنه يتم رشها في كثير من الأحيان أثناء عملية الطهي ، مما يعقد رعاية المطبخ. بين الثلاجة وسطح الطاولة ، تحتاج إلى توفير مسافة لا تقل عن 15 سم.
لا تنسى غطاء محرك السيارة. لديها معايير الإقامة التالية (من ذلك إلى الفرن):
- للكهرباء 70-75 سم ؛
- لموقد الغاز 75-80 سم.

غطاء على موقد الغاز للمطبخ الأخضر الساطع
بالنسبة إلى الأفران ، لضمان فتح وإغلاق الباب بسرعة وخالية من المتاعب ، يجب تثبيته على مسافة 1 سم من خزائن المطبخ الأخرى. يتم تثبيت الفرن في حالة قلم رصاص في ارتفاع العين. يعد ذلك ضروريًا لضمان التشغيل المريح ، وبالتالي لا يمكن للأطفال الوصول إليه.

فرن مدمج على ارتفاع مريح
أنواع خزائن المطبخ

أنواع خزائن المطبخ حسب نوع الموقع
حسب نوع ترتيب خزائن المطبخ ، يتم تقسيمها إلى:
- يقف الكلمة.
- الحائط
- الزاوية.
أرضية

خزائن أرضية بأحجام
يتم وضع خزائن المطبخ هذه على الأرض ، وغالبًا ما تسمى الإبهام ، والخزائن ، ووحدات الأرضية ، إلخ. الساقين للتنسيب يمكن أن تكون زخرفية أو تقنية. في الحالة الأخيرة ، يختبئون وراء القاعدة. هناك حاجة إلى خزائن المطبخ الكلمة من أجل تخزين الأشياء الثقيلة والكبيرة ، لبناء فيها الأجهزة المنزلية. الفارق الرئيسي بين الوحدات المركبة هو عمقها 60 سم ، أما في الجدار - 30-40 سم ، في الأرض ، يتم أخذ سمك سطح الطاولة في الاعتبار.

خزائن أرضية مريحة مع أدراج بأحجام مختلفة في المناطق الداخلية
يعلق على الحائط

خزائن المطبخ المفصلية مع أحجام
يتم تثبيت خزائن المطبخ على الحائط. وهي معروفة أيضًا بأسماء مثل الرفوف المعلقة أو الوحدات النمطية. خزائن المطبخ المفصلية خفيفة الوزن وأصغر من الأرضية. يمكن أن تكون الأبواب مصنوعة من الخشب والزجاج ، مما يخلق تأثيرات بصرية مختلفة.

خزائن الأرضية والجدران في الداخل من مطبخ واسع
زاوية

خزانة المطبخ الزاوية مع أبعاد
حسب التصميم ، هذا هو أكثر خزائن المطبخ تطوراً. أنها تبدأ جميع الحسابات الخاطئة والإضافات من الوحدات الأخرى. حتى مع التثبيت ، يبدأ صانعو الأثاث من خزائن المطبخ في الزاوية. من أجل فهم المشروع قيد التطوير بطريقة أو بأخرى ، تحتاج إلى فهم حجم وحدات المطبخ العلوي والسفلي.نظرًا لأن الأحواض يتم وضعها دائمًا في الوحدات النمطية الزاوية ، فأنت بحاجة إلى دراسة الأحجام القياسية للأحواض من أجل اختيارها بشكل صحيح وفقًا لمعايير خزانة مطبخ الزاوية.

الزاوية مفصلية خزانة بيضاء في الداخل من المطبخ

خزانة الزاوية السفلية إلى المطبخ مع تخزين مدمج مناسب
أحجام خزائن المطبخ

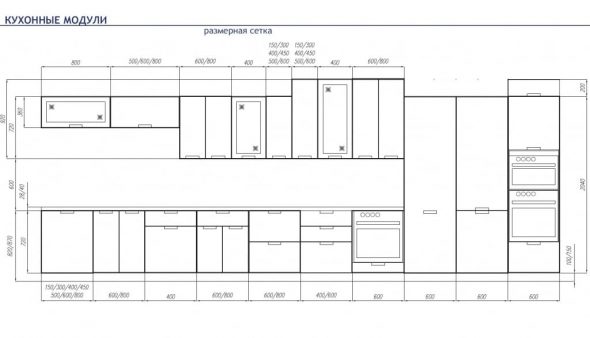
شبكة الأبعاد من وحدات المطبخ من أنواع مختلفة مع أبعاد
يتم النظر في العرض والارتفاع وعمق وحدات الجدار ومنصات الأرضية بشكل منفصل ، حيث توجد بعض الاختلافات. هذا صحيح خاصة في العمق. الآن النظر في معايير خزائن المطبخ.

إضافي لترتيب مريح ومريح للمعدات والغسيل والخزائن
أحجام المطبخ الكلمة curbstones

الحجم الأمثل لأثاث المطبخ وممرات المطبخ
الارتفاع الأمثل - 850 مم لمضيفات متوسط الارتفاع. في هذه الحالة ، يكون هذا الارتفاع هو:
- غطاء 100 مم ؛
- إطار الوحدة (القاعدة) - 720 مم ؛
- سمك الطاولة - 280 مم.
للنساء طويل القامة ، يمكن زيادة ارتفاع المدرجات الكلمة إلى 900 ملم.
حول العمق القياسي المكتوب بالفعل أعلاه:
- العمق القياسي لخزانات المطبخ السفلية يتراوح بين 700 و 900 مم ؛
- العمق القياسي لخزائن المطبخ هو 350-450 مم.
خزائن الحائط المعايير

خزائن المطبخ القياسية مع أبعاد
ارتفاع الواجهة الأمامية 700-900 مم. يتوافق طول العناصر المركبة مع طول الجزء السفلي. من المهم أن تأخذ في الاعتبار أن المسافة بين أسفل الوحدات العليا وسطح سطح الطاولة في الأسفل يجب أن يكون 450 مم على الأقل لضمان الراحة والراحة عند الطهي. الارتفاع الأمثل بين سطح الطهي والغطاء هو 750 مم. ارتفاع الأدراج في المطبخ هو:
- صغيرة - 14 سم ؛
- متوسطة - 28 سم ؛
- كبير - 35 سم
أحجام خزائن المطبخ الزاوية ، قياسي
- الجدران الجانبية في خزائن المطبخ الزاوية ، موازية للجدران في المطبخ ، ويساوي كلاهما 600 مم.
- الجدران الجانبية لوحدات الزاوية ، المتاخمة للأدراج المجاورة ، تبلغ 315 مم على حد سواء.
- الجزء الأمامي مغلق بباب 380 مم.
- الجزء الخلفي حوالي 165 ملم.
الأحجام القياسية من خزائن المطبخ

موقع الحوض وسطح التقديم اعتمادا على نمو مضيفة المطبخ
أثناء الطلبات ، يتم استخدام الأحجام القياسية في أغلب الأحيان. من المهم أن يتم ترتيب جميع العناصر بشكل صحيح ، ثم حتى المطبخ الصغير سيبدو رائعًا ويبدو أكثر اتساعًا مما هو عليه الآن. إذا كنت لا تأخذ في الاعتبار القواعد الأولية ، فإن مساحة المطبخ تشبه غرفة عادية مع جميع أنواع أكوام. إذا أخذنا في الاعتبار الحجم القياسي للوحدات ، يمكنك بسهولة تجميع مطبخ مناسب وعملي.

حجم وضع وظيفي للأثاث مع منطقة الرؤية اللازمة والوصول إلى العناصر الفردية للمطبخ
| اسم الوحدة | العرض ، مم | مم الارتفاع | مم عمق |
| أرضية | 450 مع الباب الأول و 600-900 مع 2 | 700-900 | 600 |
| يعلق على الحائط | 450 مع الباب الأول 600-900 مع 2 | 700-900 | 300 |
| زاوي | 400 (الباب الأمامي) ، 170 - جدار مواز للخزانة | 700-900 | 600 و 600
600 و 420 |
فيديو: أحجام المطبخ القياسية
كيفية جعل حجم خزائن المطبخ (الرسومات ، نصائح).
تجميع مطبخ صغير: قواعد لتجميع أثاث المكاتب
لماذا تحتاج إلى التفاف الألومنيوم لكونترتوب؟
المطبخ الذي الخزانات تصل إلى السقف
عتبة كونترتوب في المطبخ بأيديهم.
كيفية اختيار كونترتوب المطبخ





